Зростання інтересу до енергоефективності та модульних твердопаливних котелень
Зростання інтересу бізнесу та бюджетного сектору до енергоефективності, сталого використання ресурсів і енергетичної незалежності створює передумови для пошуку і реалізації нових технологій у сфері теплопостачання. Тренд на використання нетрадиційних і відновлювальних джерел енергії, таких як сонячна енергія [1], переробка вторинних енергоресурсів і підвищення ефективності елементів систем теплопостачання [3], а також впровадження органічного циклу Ренкіна [7] і технологій водневої енергетики [8], набирає популярності.
У сучасному світі, де стійкість, незалежність та ефективність енергопостачання стають все більш актуальними, модульні твердопаливні котельні представляють собою перспективне рішення для забезпечення теплової енергії адміністративних, виробничих і житлових будівель і споруд. Унікальність і переваги твердопаливних котелень, зокрема модульних, полягають у можливості ефективного використання різноманітних джерел твердого палива, таких як дрова, брикети або пелети, що робить їх перспективними для локальної диверсифікації і децентралізації джерел теплової енергії [9].
Модульні твердопаливні котельні мають ряд значних переваг:
- Енергонезалежність: Практично повна незалежність від зовнішніх економічних та енергетичних чинників (особливо при наявності місцевого джерела палива).
- Диверсифікація на місцеві палива: Використання пального, яке розповсюджене в регіоні або є вторинним продуктом основної діяльності підприємства, дозволяє досягати вигідних показників вартості теплової енергії.
- Екологічність: Викиди парникових газів з твердого палива є високими, але з урахуванням того, що в процесі зростання дерев відбувається абсорбція еквівалентів СО2, в балансі маємо практично відсутні викиди парникових газів.
- Спрощення проектних процедур: Можливість прив’язки сертифікованого виробу до місцевих умов спрощує проектування для діапазону до 200 кВт.
- Спрощення будівельних процедур: Легка логістика готової модульної котельні, відсутність необхідності погодження з третіми сторонами, швидкість введення в експлуатацію.
- Типовість: Модульні твердопаливні котельні зазвичай проектуються і будуються на основі отриманих сертифікатів відповідності та проектів прив’язки, що виключає технічні помилки.
Коефіцієнт використання палива для модульних котелень варіюється в залежності від типу сировини від 0,81 до 0,89 м³/Гкал (під м³ розуміється складометр паливної деревини). Натурні спостереження показують середні сезонні коефіцієнти корисної дії модульних твердопаливних котелень на рівні 82-86% [10].
Котельні є приміщенням, будівлею або спорудою, в яких розміщено обладнання та пристрої (теплогенератори, допоміжне устаткування), призначені для вироблення теплової енергії та передачі її теплоносію (водяна пара або гаряча вода) з метою теплозабезпечення споживачів. Котельні потужністю понад 200 кВт підлягають нормам ДБН В.2.5-77.
Життєвий цикл стаціонарної котельні, як і будь-якого іншого об’єкта будівництва, включає такі етапи, регламентовані Законом України «Про регулювання містобудівної діяльності»:
- Збір вихідних даних: Завдання на проєктування, документи на земельну ділянку, технічні умови, довідка про фонові концентрації шкідливих речовин тощо.
- Виконання проекту: Як окремо, так і в складі комплексного проекту нового будівництва, реконструкції або капітального ремонту.
- Проходження експертизи: Комплексної та спеціалізованої для об’єктів підвищеної небезпеки.
- Отримання дозвільних документів: Для об’єктів класу наслідків СС2, СС3 або декларативних для СС1.
- Процес будівництва: Виготовлення виконавчої документації, пусконалагоджувальні роботи.
- Отримання сертифікату відповідності: Введення в експлуатацію та право власності на об’єкт нерухомості.
Що стосується модульної котельні, якщо вона сертифікована згідно чинного законодавства та має паспорт виробу, то її життєвий цикл для кінцевого споживача значно спрощений і базується на виконанні проєкту прив’язки:
- Блоки вихідних даних та проекту: Реалізовані виробником котельні і містять апробовані креслення, завдання на прив’язку.
- Виконання проекту прив’язки: Просте і економічно доцільне порівняно з виконанням повного комплекту проєктної документації з нуля.
- Проходження експертизи проекту прив’язки: Процедура, яка залежить від багатьох чинників улаштування модульної котельні.
- Встановлення та приєднання: Готовий виріб модульної котельні встановлюється та приєднується до теплових мереж споживача, проводяться пусконалагоджувальні роботи.
Для додаткової інформації про модульні твердопаливні котельні та наші послуги, відвідайте наш сайт. Наші фахівці допоможуть знайти оптимальне рішення для вашого об’єкта.
Якщо є будь-які інші вимоги або доповнення, повідомте мені!


Висновки
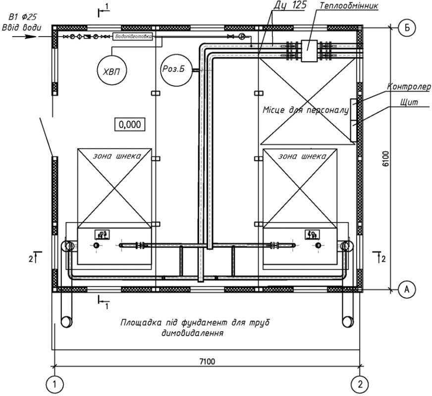
Таким чином, у випадку з модульними твердопаливними котельнями замовник будівництва відповідає лише за підготовку фундаменту для будівлі котельні та димоходів. Котельня надходить на об’єкт будівництва в зібраному вигляді та монтується на готовий фундамент. Такий підхід має значні переваги в плані скорочення термінів будівництва та спрощення організації будівельного виробництва.
Досяжні середньорічні коефіцієнти корисної дії модульних котелень складають 82-86%. Однією з найбільших переваг модульних твердопаливних котелень є здатність забезпечувати енергетичну незалежність, що є критично важливим у випадку нестабільності централізованих мереж енергопостачання. Крім того, такі котельні можуть знижувати вартість теплової енергії завдяки використанню локальних і відновлювальних джерел пального.
Для додаткової інформації про модульні твердопаливні котельні та інші енергетичні рішення, які ми пропонуємо, відвідайте наш сайт.
Список використаних джерел:
- Пасічник, П., Погосов, О., & Кулінко, Є. (2024). АНАЛІЗ СТАНУ СВІТОВОГО РИНКУ СУЧАСНИХ ПОВІТРЯНИХ ГЕЛІОКОЛЕКТОРІВ. Collection of Scientific Papers «ΛΌГOΣ», (February 2, 2024; Oxford, UK), 188–194. https://doi.org/10.36074/logos-02.02.2024.038.
- Приймак, О., Пасічник, П., Білан, Р., & Нагорний, С. (2016). Визначення частки теплового навантаження, що заміщується енергією сонця та вітру для системи теплопостачання з комбінованим сонячно-електричним повітропідігрівачем. Енергоефективність в будівництві та архітектурі, (8), 292-296.
- Погосов, О., Пасічник, П., & Кулінко, Є. (2023). ВПЛИВ ДЕЯКИХ ПРОЕКТНИХ РІШЕНЬ НА КЛАС ЕНЕРГЕТИЧНОЇ ЕФЕКТИВНОСТІ БУДІВЛІ. Collection of Scientific Papers «SCIENTIA», (December 22, 2023; Coventry, UK), 214–217. Retrieved from https://previous.scientia.report/index.php/archive/article/view/1526.
- Malkin, E., & Pogosov, O. (2015). Оцінка вторинних енергоресурсів та напрямки підвищення енергоефективності при реконструкції систем паропостачання промислових підприємств. Вентиляція, освітлення та теплогазопостачання, (18), 106–112. https://doi.org/10.32347/2409-2606.2015.18.106-112.
- Погосов, О. Г. ., Чепурна, Н. В. ., Пасічник, П. О. ., Кулінко, Є. О. ., & Дорошенко, А. А. (2023). Сучасні системи тепло- та паропостачання промислових підприємств при застосуванні глибокої утилізації енергетичного потенціалу технологічної пари. Вентиляція, освітлення та теплогазопостачання, (45), 42–51. https://doi.org/10.32347/2409-2606.2023.45.42-51.
- Гламаздін, П., Вітковський, В., Рогожин, Д., Карпюк, М., & Габа, К. (2022). Підвищення ефективності систем централізованого теплопостачання за рахунок оптимізації служби підготовки води. Досвід КП «Житомиртеплоенерго». Вентиляція, освітлення та теплогазопостачання, (43), 50–64. https://doi.org/10.32347/2409-2606.2022.43.50-64.
- Юрик , В., & Погосов , О. (2024). ЗАГАЛЬНІ МОЖЛИВОСТІ ТА ДЕЯКІ АСПЕКТИ ЗАСТОСУВАННЯ СИСТЕМИ ГЕНЕРАЦІЇ ЕЛЕКТРИЧНОЇ ЕНЕРГІЇ НА ОСНОВІ ОРГАНІЧНОГО ЦИКЛУ РЄНКІНА. Collection of Scientific Papers «SCIENTIA», (January 26, 2024; Helsinki, Finland), 204–208. Retrieved from https://previous.scientia.report/index.php/archive/article/view/1584.
- Погосов, О., & Чепурна, Н. (2024). Перспективи та проблематика використання водню, як системи акумуляції позабалансної генерації електричної енергії, для нафтогазового та енергетичного секторів України. Scientific Collection «InterConf», (187), 314–321. Retrieved from https://archive.interconf.center/index.php/conference-proceeding/article/view/5355.
- Пасічник, П., Погосов, О., & Кулінко, Є. (2024). Можливості децентралізації систем теплопостачання в газифікованих багатоквартирних будинках радянської забудови в м. Києві. Scientific Collection «InterConf+», (42(189), 592–600. https://doi.org/10.51582/interconf.19-20.02.2024.061.
- Наказ Міністерства регіонального розвитку, будівництва та житлово-комунального господарства України від 11.07.2018 № 169 «Про затвердження Методики визначення енергетичної ефективності будівель», зареєстрований в Міністерстві юстиції України 16.07.2018 за № 822/32274.